









































古くからその雰囲気が変わっていないであろう葉山の上山口の山の上。周辺には家が1つしかありません。真っ直ぐに伸びる塀、潜り戸のある棟門。まさに屋敷です。仰々しく感じる入口の印象とは違い、敷地内は様々な樹木や果実がなり、和風庭園というより、昔懐かしい里山のような、柔らかい印象。自然が織りなす音しか聞こえてこない世界。そこに建つ家屋に息づく、人の手で大切に造られ、紡いできた過去から現在を、心と体で感じることが出来ます。物件というより文化財。後世に残す物というより、残ってほしいのは、その「感覚」のような気もします。
| 所在地 | 三浦郡葉山町上山口 |
|---|---|
| 交通 | JR横須賀線「逗子」駅 バス20分「滝の坂」停歩3分 |
| 土地面積・権利・地目・都市計画 | 公簿2686.58㎡(812.69坪)・所有権・宅地・市街化調整区域 |
| 用途地域・建蔽率・容積率・道路 | 定めなし・30%・50%・私道 幅員約3.2~5.5m |
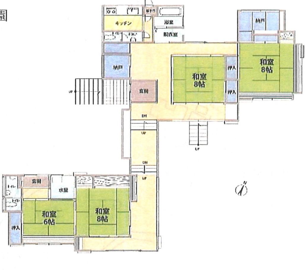
| 建物床面積・間取・築年月 | 148.36㎡・4K+納戸2つ・1966年5月築 |
| 現況・設備・権利 | 居住中・公営水道・LPガス・東京電力・個別浄化槽 |


