



















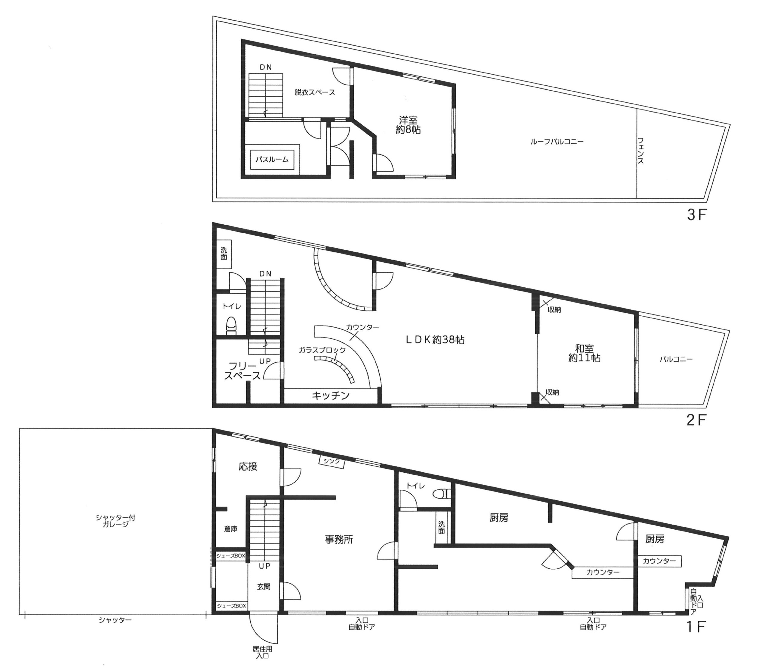
衣笠駅からほど近く、投資物件としても、賃料収入を得ながらお住まいでも、自分で店舗をやりながら2階3階に居住でも。立地の良さ、用途の多さ、資産としても好条件な物件です。
| 所在地 | 横須賀市小矢部1丁目 |
|---|---|
| 交通 | JR横須賀線「衣笠」駅 停歩6分 |
| 土地面積・権利・地目・都市計画 | 公簿191.59㎡(57.95坪)・所有権・宅地・市街化区域 |
| 用途地域・建蔽率・容積率・道路 | 近隣商業地域・80%・300%・西側 公道約15m、南側 公道約4m |
| 建物床面積・間取・築年月 | 251.57㎡・1階テナント×3、2階3階2LDK・1986年10月築 |
| 現況・設備・権利 | 空家・上水道・LPガス・東京電力・公共下水 |
| 想定賃料・想定利回り | テナント1賃料8万円・テナント2賃料12万円・テナント3賃料6万円・2階3階居住用 賃料15万円(カースペース2台分・大型シャッター付ガレージ)総額41万円/月、年間492万円。利回り12%。 |


