









逗子・新宿3丁目。逗子で新宿町名に住んでると言うと「良い所に住んでるね~」となる。逗子駅までも平坦。逗子海岸までも平坦。逗子に来たい人が求める立地。しかも、建築費高騰の中、場所の良い建売住宅としては、建築内容も含めてコスパ良しです!但し、その理由もあって、土地は地元の岩殿寺の所有。つまり、借地権です。借地権の説明に関しては、ここでの説明では理解が難しいと思うので、メリット・デメリット含めしっかりとご説明させていただきます。
| 所在地 | 逗子市新宿3丁目 |
|---|---|
| 交通 | JR横須賀線「逗子」駅 徒歩8分 |
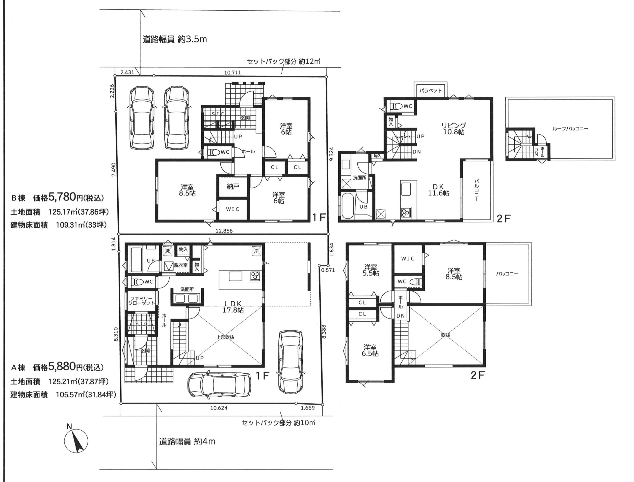
| 土地面積・権利・地目・都市計画 | 公簿125.17㎡(37.86坪)・所有権・宅地・市街化区域 |
| 用途地域・建蔽率・容積率・道路 | 第一種住居地域(近隣商業)・60(80)%・160%・公道 約3.5~4m |
| 建物床面積・間取・築年月 | 105.57~109.31㎡・3LDK・令和7年7月完成予定 |
| 現況・設備・権利 | 更地・上下水道・都市ガス・東京電力・借地権(新規20年・地代16,500円/月) |
| 各価格・建築確認番号 | A棟(南道路)5,880万円(税込)・建築確認番号 第24UDI1K建01873号
B棟(北道路)5,780万円(税込)・建築確認番号 第24UDI1K建01874号 |


